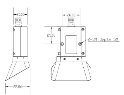
The dimensions and form factors are expected to change in the next year as we add more features.
This device is currently in the very early stages, and as such, the following are only expected dimensions.
Talk to us before deciding.
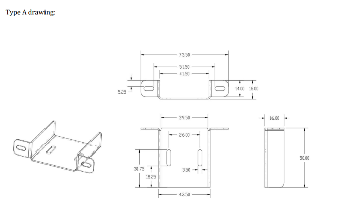
Without Cover:

With Cover:



